Předmětem studie bylo zpracování návrhu optimálního uspořádání ambulancí interního pavilonu včetně návrhu centrálního příjmu tohoto pavilonu. Hlavním cílem projektu bylo zvýšení komfortu pacienta.
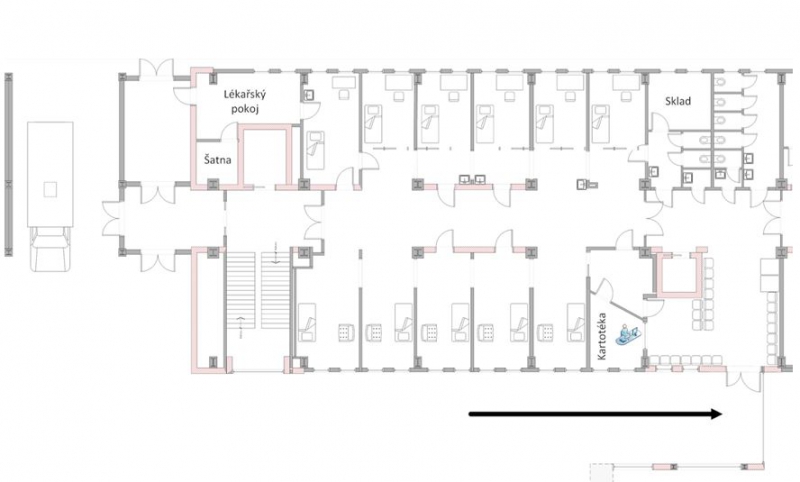
Vedení nemocnice není spokojeno s procesem příjmu a léčení pacienta v ambulancích v interním pavilonu. Tento pavilon je situovaný v přízemí 4 patrové budovy. Není zde vytvořen žádný centrální příjem, není pro pacienty k dispozici centrální čekárna, pacienti čekají na chodbě, prolínají se příjmy běžných a plánovaných pacientů s pacienty, které přiváží rychlá zachranná služba. Ambulance jsou rozmístěny v jednotlivých místnostech a slouží pro jednotlivé odbornosti interního povailonu: Interně, Neurologii a Kardiologii. Současný layout pavilonu vidíte na přiložené fotografii.
Postup projektu byl takovýto:
- analýza dat – obdrželi jsme a zpracovali data z nemocnicčního systému o počtu a příchodu pacientů
- měření – během jednoho týdne jsme prováděli fyzické měření příchodu, pobytu a odchodu pacientů
- vytvoření dynamického simulačního modelu – zde jsme využili spolupráce s kolegy ze společnosti DYNAMIC FUTURE s.r.o., kteří pracují se simulačním programem Witness
- návrh nového uspořádání – nové uspořádání ambulancí, zřízení cetrálního příjmu s kartotékou a čekárnou
- ověření simulačním modelem
Výstupem projektu je návrh nového uspořádání ambulancí, čekárny. Tento návrh zajišťuje plynulý tok pacientů, umístění ambulancí a stacionářů. Návrh je v duchu filozofie „lékař jde za pacientem“, nikoli „pacient běhá za lékařem“, plánovaní a běžní pacienti se nepotkávají s akutními případy a zároveň je pro personál zajištěn přístup na JIP. Celkově se tak dosáhne hlavního cíle projektu – zvýšení komfortu pacientů.
Dalším výstupem projektu je ověření kapacity ambulancí, stacionáře a čekárny a dále zjištění kapacitní potřeby lékařského personálu.
Projekt trval 8 týdnů.





